Villa singola in vendita

Zero Branco, Via Cappella - Bottaro
€ 240.000
4 locali 4 locali
211 Mq 211 Mq
2 bagni 2 bagni

Villa singola in vendita

Zero Branco, Via Cappella - Bottaro

Descrizione annuncio

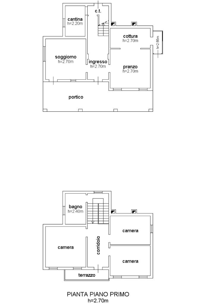
L’Agenzia Tecnocasa di Zero Branco propone in vendita una villa singola con magazzino di circa 78 mq a Zero Branco.

Dal portico di circa 38mq, accediamo al piano terra dove sono presenti un soggiorno, la cucina separata. Completano il piano un bagno con box doccia e un angolo lavanderia.

Al piano ammezzato si trova il secondo bagno con box doccia in fase di rifaciemento. Salendo qualche gradino, si accede a due camere matrimoniali e una singola. Un terrazzo completa il piano.

A completare la proprietà, un giardino privato di circa 1200 mq, creando un’oasi di verde ideale per il relax all’aperto.

Questa soluzione rappresenta un’ottima opportunità per chi cerca una casa indipendente con ampi spazi e possibilità di personalizzazione, in una zona tranquilla ma comoda al centro del paese.

Ad accessoriare l'immobile sono: gli infissi in doppio vetro camera in pvc, la stufa a pellet, uno split e la caldaia a condesazione.

Per ulteriori informazioni e per organizzare una visita, contattate la nostra Agenzia al numero oppure venite a trovarci in Via Martiri della Libertà 4 a Zero Branco. Saremo lieti di assistervi nella scoperta di questa interessante proprietà.

Mostra tutto

Nelle vicinanze

Trasporto pubblico Trasporto pubblico
Trasporto pubblico
2,4 Km
Ricariche auto elettriche Ricariche auto elettriche
Municipio Comune Zero Branco
1,4 Km
Cimitero di Cappella | EnelX
2,5 Km
Scuole Scuole
Scuole
1,0 Km
Scuola media statale Europa
1,1 Km
Scuola Elementare Guglielmo Marconi
1,2 Km
Farmacia Farmacia
Farmacia Sagramora
1,4 Km
Farmacia Santarello
1,5 Km
Farmacia San Giovanni
2,5 Km
Negozi Negozi
Panificio Dozzo
1,4 Km
Panificio/Pasticceria da Ettore Cagnin
2,5 Km
Pavan Abbigliamento
2,6 Km
Bar Bar
Bar
1,4 Km
Bar Nuovo di Valerio e Marisa
2,5 Km
Prince Pub
2,5 Km
Ristoranti Ristoranti
Il Signore dei Fornelli
930 m
Pizzeria Arrigoni & Basso
1,5 Km
Osteria da Bimbari
2,3 Km
Ristorante I Savi
2,5 Km
Osteria Zero
2,5 Km
Mostra tutto

Caratteristiche

Rif.:
61140661
Piano:
1 di 2 (Piano su più livelli)
Box:
1
Posti auto:
2
Terrazzi:
1
Camere da letto:
3
Mostra tutto
Prezzo Prezzo
€ 240.000
Rata mutuo Rata mutuo
€ 1.133 / mese
Spese annue Spese annue
€ 0
Proponi il tuo prezzoProponi il tuo prezzo

Classe Energetica

Questo immobile è esente da classe energetica
Anno di costruzione:
1975
Riscaldamento:
Autonomo
Tipo impianto:
A stufa
Tipo alimentazione:
Metano

Ti interessa visionare l'immobile?

Fissa un appuntamento  Fissa un appuntamento

Richiedi informazioni

Clicca su Leggi per aprire l'informativa
* Questi campi sono obbligatori

Calcola il tuo mutuo

Semplice e senza impegno
Anticipo

( % )
Mutuo

( % )

pochi semplici passi

inserisci i tuoi dati
Questionario completato
Grazie per aver richiesto un appuntamento senza impegno con un nostro Consulente del Credito e Assicurativo.

Hai inserito correttamente tutti i dati necessari e a breve riceverai una e-mail con un link da convalidare per inviare i tuoi dati.
Affiliato
Studio Zero Sas
Via Martiri della Libertà , 4 31059 Zero Branco (TV)

Il nostro staff


  • Roberto Albano
    Affiliato

  • Sebastiano Romeo
    Responsabile
Via Martiri della Libertà , 4 31059 Zero Branco (TV)
Zona: Zero Branco
Mostra su mappa
Orari: Lunedì al Venerdì 09:00 - 12:30 14:30 - 19:30 Sabato 9:00 - 12:30
Affiliato
Studio Zero Sas
Via Martiri della Libertà , 4 31059 Zero Branco (TV)

2025 Tecnocasa Franchising S.p.A. - P. IVA 08365160152 - Via Monte Bianco 60/A 20089 Rozzano (MI). Ogni agenzia ha un proprio titolare ed è autonoma. Privacy policy | Policy utilizzo | Cookie policy