Porzione di bifamiliare in vendita

Zero Branco, Via Fontane - Franchin
€ 455.000
4 locali 4 locali
200 Mq 200 Mq
2 bagni 2 bagni

Porzione di bifamiliare in vendita

Zero Branco, Via Fontane - Franchin

Descrizione annuncio

- BORGO JAIRUS - Zero Branco, prossima realizzazione di 12 biville in un contesto esclusivo ed elengante nel suo genere.

Esclusiva bivilla di nuova costruzione, inserita in un contesto riservato e prestigioso su lotto di 9.000 mq, dove architettura contemporanea, luce e comfort si fondono in un progetto di alto profilo.

L’abitazione si sviluppa su due livelli ed è caratterizzata da spazi ampi e luminosi.
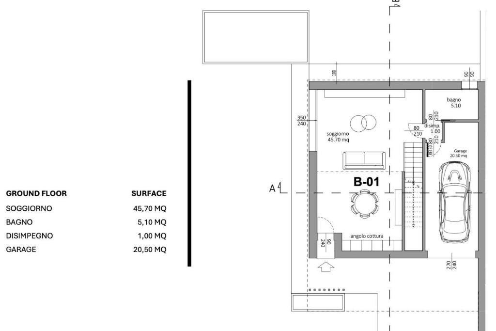
Al piano terra, il cuore della casa è un elegante open space di 45,70 mq, impreziosito dalla doppia altezza e da una scenografica vetrata che dissolve il confine tra interno ed esterno, regalando una sensazione di continuità e benessere. Completano il livello un raffinato bagno di servizio di 5,10 mq, un disimpegno e l’accesso diretto al garage privato di 20,50 mq.

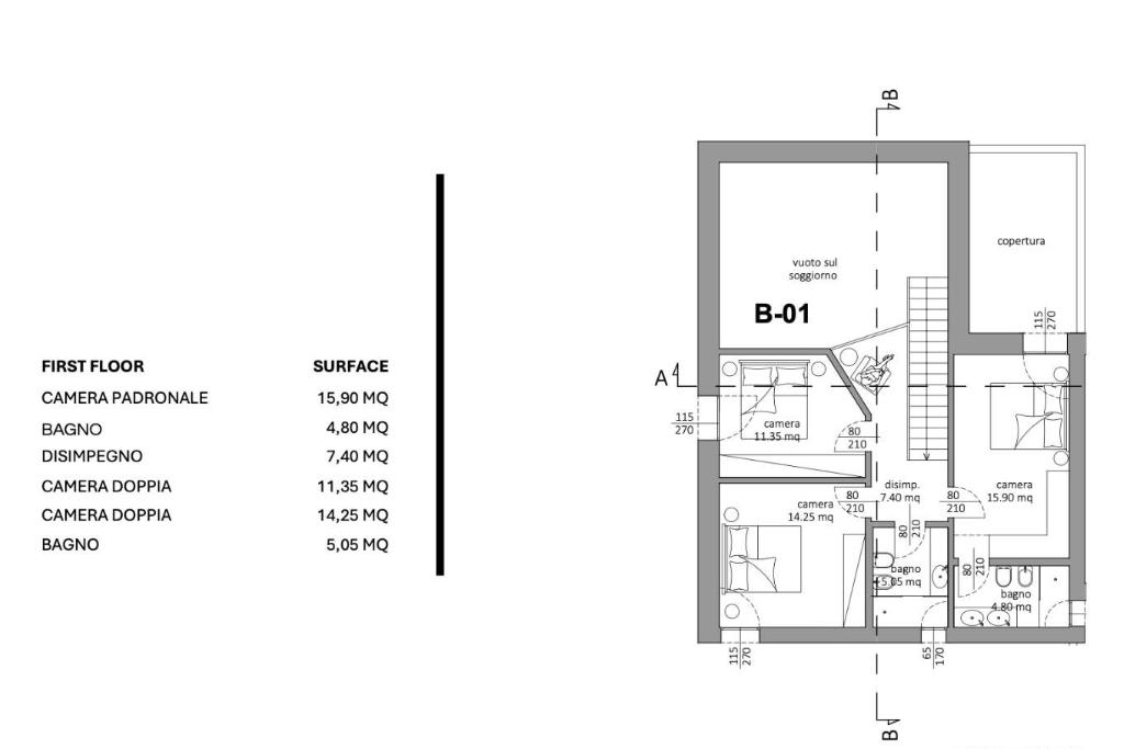
Il piano primo ospita una zona notte intima e armoniosa, con camera padronale di 15,90 mq, due camere doppie di 14,25 mq e 11,35 mq, due bagni eleganti (5,05 mq e 4,80 mq) e un ampio disimpegno di 7,40 mq affacciato sul soggiorno sottostante, che valorizza ulteriormente il gioco di volumi e altezze. In alcune soluzioni, la camera padronale è arricchita da un terrazzo abitabile esclusivo, perfetto per momenti di relax in totale privacy.

All’esterno, un giardino privato su tre lati di circa 450 mq circonda la residenza, progettato con essenze autoctone e linee pulite; è possibile integrare una piscina che completa l’esperienza abitativa, trasformando gli spazi outdoor in una vera oasi privata.

Materiali selezionati, finiture di alto livello, impianto fotovoltaico, pompe di calore e domotica integrata garantiscono comfort elevato, efficienza energetica e uno stile di vita moderno e sostenibile.
Accesso indipendente con cancello motorizzato.

Una residenza pensata per chi cerca eleganza, privacy e qualità senza compromessi.

Maggiori informazioni in agenzia.

Mostra tutto

Nelle vicinanze

Trasporto pubblico Trasporto pubblico
Trasporto pubblico
2,5 Km
Ricariche auto elettriche Ricariche auto elettriche
Municipio Comune Zero Branco
1,4 Km
Cimitero di Cappella | EnelX
2,5 Km
Scuole Scuole
Scuole
1,1 Km
Scuola media statale Europa
1,1 Km
Scuola Elementare Guglielmo Marconi
1,2 Km
Farmacia Farmacia
Farmacia Sagramora
1,4 Km
Farmacia Santarello
1,5 Km
Farmacia San Giovanni
2,6 Km
Negozi Negozi
Panificio Dozzo
1,4 Km
Panificio/Pasticceria da Ettore Cagnin
2,5 Km
Pavan Abbigliamento
2,6 Km
Bar Bar
Bar
1,3 Km
Bar Nuovo di Valerio e Marisa
2,6 Km
Prince Pub
2,6 Km
Ristoranti Ristoranti
Il Signore dei Fornelli
800 m
Pizzeria Arrigoni & Basso
1,4 Km
Osteria Zero
2,4 Km
Osteria da Bimbari
2,4 Km
Ristorante I Savi
2,6 Km
Mostra tutto

Caratteristiche

Rif.:
61173528
Piano:
2 di 2 (Piano su più livelli)
Box:
1
Posti auto:
1
Terrazzi:
1
Camere da letto:
3
Mostra tutto
Prezzo Prezzo
€ 455.000
Rata mutuo Rata mutuo
€ 2.156 / mese
Spese annue Spese annue
€ 0
Proponi il tuo prezzoProponi il tuo prezzo

Classe Energetica

A4
A4
A4
A4
A4
A4
A4
A4
A4
EP invernale del fabbricato:
EP estiva del fabbricato:
Anno di costruzione:
2026
Riscaldamento:
Autonomo
Tipo impianto:
A pavimento
Tipo alimentazione:
Pannelli

Ti interessa visionare l'immobile?

Fissa un appuntamento  Fissa un appuntamento

Richiedi informazioni

Clicca su Leggi per aprire l'informativa
* Questi campi sono obbligatori

Calcola il tuo mutuo

Semplice e senza impegno
Anticipo

( % )
Mutuo

( % )

pochi semplici passi

inserisci i tuoi dati
Questionario completato
Grazie per aver richiesto un appuntamento senza impegno con un nostro Consulente del Credito e Assicurativo.

Hai inserito correttamente tutti i dati necessari e a breve riceverai una e-mail con un link da convalidare per inviare i tuoi dati.
Affiliato
Studio Zero Sas
Via Martiri della Libertà , 4 31059 Zero Branco (TV)

Il nostro staff


  • Roberto Albano
    Affiliato

  • Sebastiano Romeo
    Responsabile
Via Martiri della Libertà , 4 31059 Zero Branco (TV)
Zona: Zero Branco
Mostra su mappa
Orari: Lunedì al Venerdì 09:00 - 12:30 14:30 - 19:30 Sabato 9:00 - 12:30
Affiliato
Studio Zero Sas
Via Martiri della Libertà , 4 31059 Zero Branco (TV)

2026 Tecnocasa Franchising S.p.A. - P. IVA 08365160152 - Via Monte Bianco 60/A 20089 Rozzano (MI). Ogni agenzia ha un proprio titolare ed è autonoma. Privacy policy | Policy utilizzo | Cookie policy